PORTFOLIO

With over 150 clients served since 2018, these are just a few samples of our work!

Interior Design & Space Planning

SERENITY LOC SPA SUITE

This business owner needed a space that was not only functional, but also a beautiful reflection of the values of her natural haircare brand. We designed this space with elegant, luxurious, minimalism in mind, and found creative, rental-friendly ways to bring a spa-like vibe to the salon suite. Ensuring that this growing business has everything it needs to thrive was a top priority for our team. 

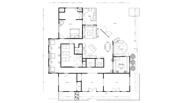
A SPRAWLING DREAM-HOME

Inspiration for this villa-style home came from our client’s accessibility needs and their love of hosting and entertaining. The floor plan gives live-in guests their privacy, while allowing a large portion of the home interior and exterior to be used independently for events. We even included some wishlist items like a sound-insulated home theater and private outdoor bathing deck for the primary suite!

RAILROAD APARTMENT REIMAGINED

Basement apartments bring unique challenges that our design team was more than ready to face in this project. With our help,  the homeowners were able to “see that space that has for so long been like the ‘stepchild’ of the house as something beautiful and useful.” By working closely with our clients, we developed a space plan that would be simple and flexible, while hiding all the little imperfections of this hidden gem of a space.

Custom Creations & Installations

WOODWORKING MASTERPIECES

From custom coffee bars and plant tables, to bed frames, cabinets, and book cases, we’re proud to be able to provide our clients with beautiful hand-crafted products to meet all of their design needs. Whether it’s new construction, ikea-hacking or upcycling old pieces in need of new life, our carpenters approach each project with care and creativity. Pictured above are samples of some of our finished projects and works-in-progress.

BUILDING BEAUTY & BLISS

We’ve had the pleasure of working with several beauty professionals, including hairstylists and medical aestheticians, to help them create spaces infused with comfort, luxury, and elegance. Through a combination of space-planning and hands-on support with everything from wall mounting, to laminate flooring, we’ve helped these businesses enhance their brand with spaces that reflect their values and vision. See a few of our finished spaces and work-in-progress above!

Contact Us To Get Started Today!

Are you interested in transforming your home or work place but don’t know where to start? How about revitalizing a lifeless space with items you already own? Or maybe you need a customized, high quality solution to fill a unique gap in your functional needs at home or work.

What ever the case may be, Made It Moore can help you every step of the way. Send us a message using the form below and we will get back to you as soon as we can. We look forward to working with you to bring your vision to life!